In late summer 2025, the project started the design development phase. The program will incorporate both Austin Parks and Recreation (APR) administrative spaces and community-serving spaces as outlined in the Holly Shores / Edward Rendon Sr. Metropolitan Park at Festival Beach Vision Plan. We will keep the community informed as the project progresses. City Council District 3
Updates
In late summer 2025, the project started the design development phase. The program will incorporate both Austin Parks and Recreation (APR) administrative spaces and community-serving spaces as outlined in the Holly Shores / Edward Rendon Sr. Metropolitan Park at Festival Beach Vision Plan.
The design development phase has identified opportunities for large community shared spaces that have access to a kitchen and restrooms in addition to park and recreation administrative offices.

Background
The Nash Hernandez building located at 1621 Nash Hernandez Senior Road is an approximately 9,000-square-foot building built in 1966 for the Austin Fire as the Arson Division and Museum. The building has been vacant since 2009 when Austin Fire moved locations. In 2012 the Nash Hernandez building was transferred from Austin Fire to Austin Parks and Recreation (APR) for the purpose of establishing administrative offices. In 2012, a building assessment was conducted, followed by extensive asbestos and lead abatement in 2013 that left the building unoccupiable and in a state of disrepair. Between 2012 and 2019, several assessments, building remediations, and design scopes were initiated and partially developed, but ultimately never completed due to various factors. A previous design version of the Nash Hernandez building included use as an APR administrative office with no community spaces. Later, Austin Police Department (APD) and APR collaborated to utilize the building as a joint-use facility until APD pulled out of the project. On May 19, 2022, City Council authorized the negotiation and execution of a professional services agreement for design services to renovate the Nash Hernandez building to house APR administrative spaces with community-serving spaces. (Agenda Item 14). However, on June 16, 2022, Council also approved Resolution 20220616-089, directing the Department to complete a feasibility study and fiscal impact of housing an Intergenerational Resource Activity Center pilot program in the Nash Hernandez Building.
In April 2024, in response to the feasibility studies, Austin Public Health did not recommend an IRAC at the Nash Hernandez Building and the IRAC group withdrew the request to use the building. In June 2025, APR continued with the May 2022 council-approved plan for administrative space with limited community use.
Project Description and Scope of Work
The renovation of the Nash Hernandez building will incorporate both Austin Parks and Recreation (APR) administrative spaces and community-serving spaces as outlined in the council approved Holly Shores / Edward Rendon Sr. Metropolitan Park at Festival Beach Vision Plan. The project is seeking historic landmark designation for its significance to community planning. The building was the first municipal structure built on Town Lake following its creation in 1960, prior to the implementation of the first vision plan in 1968. All work on the facility will aim to adhere to the Secretary of the Interior’s Standards for the Treatment of Historic Properties. The project will also seek LEED Silver certification or better, in alignment with APR sustainability goals and required by the City of Austin’s 2021 Green Building Ordinance. The current funding may not be sufficient to build the entire program, and the project is planned be completed in two phases when full funding is available:
Phase 1
- Phase 1 will apply funds towards the most critical needs and bring the building up to life safety, accessibility, and energy compliance.
- Site improvements include upgrades to the parking lot for fire truck access, accessible parking, and electronic vehicle charging stations. The sanitary sewer system will need to be replaced.
- Landscape work will include a new Americans with Disabilities Act (ADA) route to the lower level with interpretive signage along the route, tree protection, stormwater management, and erosion control.
- The structural system will be rehabilitated but all other building systems will be removed and replaced. A new drainage system will be installed at the lower-level walls to mitigate groundwater intrusion. The exterior brick walls at the upper level will also need to be removed and reassembled due to the subsurface masonry support being removed during the asbestos abatement in 2013.
- The exterior envelope will be rehabilitated, including replacement windows, doors, and roofing.
- Preservation efforts to protect existing features that include the entry railing and lighting.
- Phase 1 will prioritize mechanical, electrical and plumbing (MEP) & heating, ventilation and air conditioning (HVAC) improvement so that it is minimally occupiable and prepared for Phase 2.
Phase 2
- Phase 2 will complete the building’s interior finish out. If only partial funds are available, the upper level will be prioritized due to its publicly accessible areas and initial administrative offices.
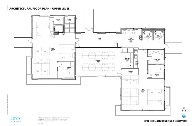
- The upper level is planned to include a large multi-use shared community meeting room that can open up into the lobby to create a larger space, a kitchenette for the community room, storage, publicly accessible toilets, and a lobby that can provide computer access opportunities to the community.
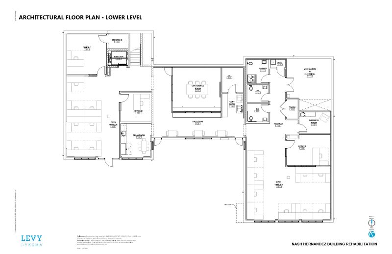
- The remaining lower-level administration office areas, including additional staff offices, restrooms and breakroom, will be finished out.



Objectives
- Fulfill the Holly Shores / Edward Rendon Sr. Metropolitan Park at Festival Beach Vision Plan for reusing existing building for community-based programs.
- Provide community-serving spaces that include a multi-purpose room with kitchen, public restrooms, and public access to technology.
- Determine Department priorities for administrative office space for the parks department staff
- Restore, interpret, and promote the irreplaceable historic and cultural resources of Austin’s park system allowing visitors and residents to discover and experience an authentic connection to the city’s diverse history.
Anticipated Schedule
- Design, Permit, and Bid Phase: Summer 2025 – Winter 2026/2027
- Construction Phase Starts: Spring 2027
Community Engagement
Previous versions of this project were presented to the East Town Lake Citizen Neighborhood Association (ETLCNA) and other community members and organizations. As the project continues, APR will continue to inform the community of progress and listen to feedback.
Boards and Commissions Schedule
- HPO Architectural Design Review: March 11, 2026 at 4pm
- Design Commission: March 23, 2026 at 6pm
Funding & Resources
Funding is provided by Certificates of Obligation.
Council Resolutions
- June 2022: Council Resolution 20220616-089 to Perform a Feasibility Study
-
Council Resolution 20220616-089 directed the City Manager to study the feasibility and fiscal impact of housing an Intergenerational Resource and Activity Center (IRAC) pilot program in the Nash Hernandez Building, including the renovation of space in the building for that purpose, and to work in conjunction with the LBJ School team to identify the design, spatial needs, and operational requirements ofthe prospective IRAC facility and pilot program.
On October 17, 2022, staff issued a response to Council Resolution 20220616-089, which included a memo from Austin Parks and Recreation’s director and a feasibility report.
- December 2022: Resolution 20221208-059 to Work Towards Implementation
-
On December 8, 2022, Council Resolution 20221208-059, directed Austin Parks and Recreation (APR) to partner with other City Departments, Austin Public Health, and the IDC Advisory Group to work towards the implementation of an IRAC, which includes identifying licenses, certifications, and funding resources and return to Council with proposals. The resolution also directed staff to conduct community stakeholder engagement meetings to gather input on initiating a pilot IRAC partnership program at Nash Hernandez and other locations recommended by APR.
On April 24, 2023, the Intergenerational Resource and Activity Center Advisory Group presented to the Parks and Recreation Board
- IRAC Presentation: Establishing an Intergenerational Resource and Activity Center at the Nash Hernandez, Sr. Building (PDF, 2.4 MB)
- Video of the April 2023 Parks Board Meeting
On April 8, 2024, staff issued a response to Council Resolution 20221208-059, which included a memo from Austin Public Health's Director and report.
- Memo and 2024 Resolution Response Report (PDF, 270 KB)
Contact Information
For more information, please contact Ingrid Kong, APR Project Manager, by email or by phone at (512) 974-9468.